продаж 1-к квартира Фастівський, Гатне, 34200 $

Україна / Київська область

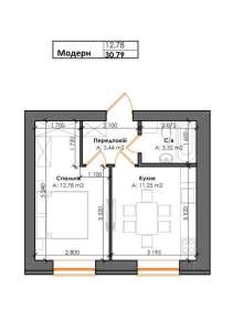
Готова 1-К 31м2 у ЖК "Рідний-3"
2 км до Метро Треремки.
с. Гатне, вул. Інститутська, 5.

Стан квартири:
1. Підлога: Бетонна шліфована стяжка
2. Стіни: Машинна штукатурка під маяки піщано-вапняна з додаванням цементу
3. Електропроводка: Мідна, перетин 6 мм.
4. Вікна: Метало-пластикові "Rehau" з подвійним енергозберігаючим склопакетом.
6. Двері вхідні: Броньовані (вир. Україна) з МДФ накладками та двома замками.
7. Індивідуальне газове опалення: двоконтурний газовий котел + розведення радіаторів + розведення теплої підлоги на кухні та у санвузлі.
РОЗМІЩЕННЯ: смт. Гатне , 2 зупинки від станції метро Теремки. (люба маршрутка від М. ТЕРЕМКИ, кожні 2-5 хв.).
ІНФРАСТРУКТУРА: Поруч вже є все для комфортного проживання: зупинка громадського транспорту, супермаркети, дитячі садочки, школи, Sport Life, Епіцентр, АТБ, McDonalds, Нова Пошта, Jusk, Мегамаркет...
На території:
Продуктовий супермаркет,
Комерційні приміщення,
Парковка для мешканці,
Дитячій та спортивний майданчик.
ЖК буді підключений до гібридної системи безперебійного живлення яка забезпечує стабільну роботу ключових комунікацій навіть під час відключення електроенергії.

Квартира чудово підходить як для купівлі для себе так і як комерційний проект під ремонт або оренду.
Інститутська, 5;
площа: 31/13/12 м2;
поверх: 4/5
Дата: П'ятниця, 31 Жовтня 2025

Інші оголошення в категорії Нерухомість » Продаж 1-кімн. квартир: